623 Lazy Point RoadAmagansett, NY 11930
Due to the health concerns created by Coronavirus we are offering personal 1-1 online video walkthough tours where possible.




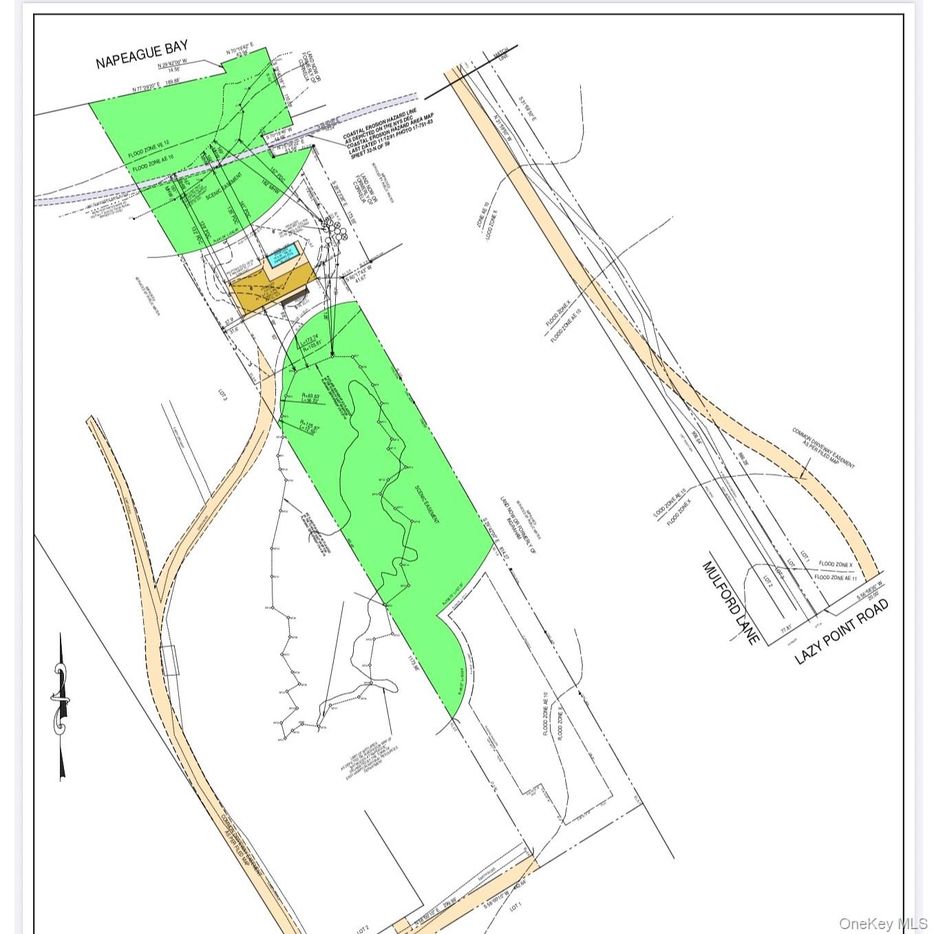
Set on an extraordinary 5.46 acres of direct bayfront in the coveted Lazy Point enclave of Amagansett, 623 Lazy Point Road presents a truly rare opportunity to own a legacy waterfront holding in one of the Hamptons’ most private and naturally beautiful settings. With sweeping, unobstructed views across the bay and exceptional frontage, the property offers an unmatched sense of scale, serenity, and possibility. The expansive acreage allows for the creation of a substantial estate while still preserving open vistas, privacy, and the tranquil character that defines Lazy Point. Gentle coastal breezes, luminous sunsets, and ever changing water views form the daily backdrop, creating a setting that feels both timeless and secluded. This premier bayfront parcel is ideally positioned for a custom residence designed to maximize light, views, and indoor-outdoor living, with ample room for waterfront amenities and resort style grounds. Located moments from ocean beaches, Amagansett Village, and the best of East Hampton, yet removed from through traffic and crowds, Lazy Point remains one of the area’s most discreet and tightly held waterfront communities. Includes permitting approval. An offering of this scale, frontage, and location is exceptionally rare—an opportunity to build a generational Hamptons estate on one of Amagansett’s most prized stretches of bayfront.
| 2 months ago | Listing updated with changes from the MLS® | |
| 2 months ago | Listing first seen on site |
Based on information submitted to the MLS GRID as of 2026-03-29 01:10 PM EDT. All data is obtained from various sources and may not have been verified by broker or MLS GRID. Supplied Open House Information is subject to change without notice. All information should be independently reviewed and verified for accuracy. Properties may or may not be listed by the office/agent presenting the information.
