East Meadow, NY 11554
Due to the health concerns created by Coronavirus we are offering personal 1-1 online video walkthough tours where possible.



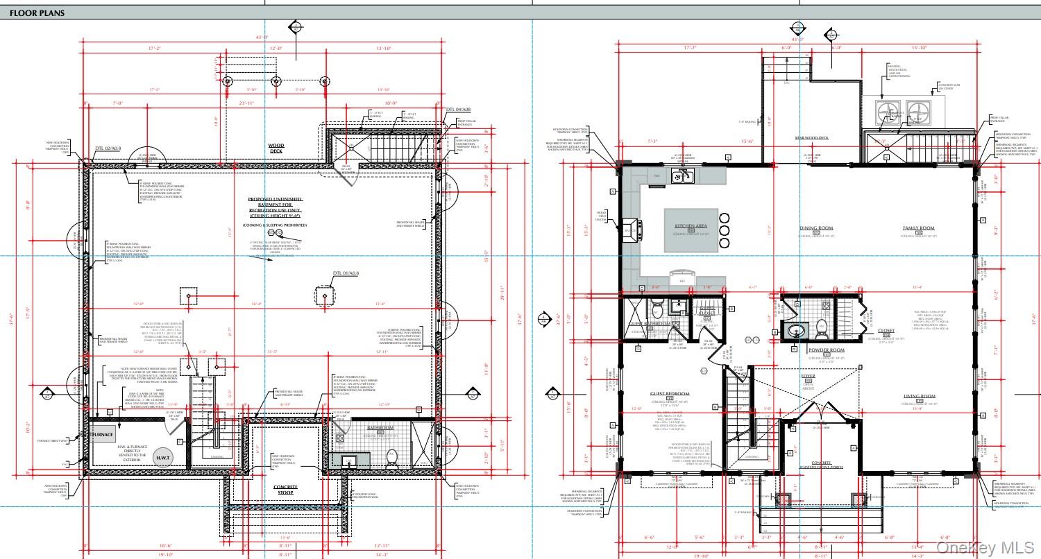
TO BE BUILT – Still time to customize! Exceptional new construction in a desirable Long Island neighborhood, featuring a full front brick with elegant stone-work pillars and stucco sides and rear. Offering approximately 5,000 sq ft of living space on a 7,200 sq ft lot, this home delivers luxury, scale, and modern design. A wide entry with a custom door welcomes you into a dramatic double-height foyer with chandelier. Designed with 10-ft ceilings throughout, the home includes central air, central vacuum, and gas cooking. The thoughtfully designed layout offers 5 bedrooms and 5.5 baths, including a first-floor bedroom with an attached full bath and closet, ideal for guests or multi-generational living. Walk-in closets, a convenient powder room, and second-floor laundry add everyday comfort. The second floor features a private primary master suite complete with a luxury bath offering a soaking tub, separate standing shower, and a spacious walk-in closet. Additional bedrooms are well-appointed with attached bathrooms, including two bedrooms connected by a Jack-and-Jill bathroom. The main level offers a formal living room, a spacious family room, and a chef’s kitchen with high-end finishes, stainless steel appliances, a striking 10-ft center island, and a pot filler over the gas stove for added convenience. A separate dining area opens to sliders leading to the backyard—perfect for entertaining or relaxing in your own gazebo. The fully finished basement includes 9-ft ceilings, a separate entrance, and a full bath, ideal for recreation, home office, or additional living space. Additional highlights include Andersen windows, premium finishes throughout, and a 1-car detached garage. Photos are virtual renderings. A rare opportunity to customize finishes and create your dream luxury home in Long Island.
| 2 months ago | Listing first seen on site | |
| 2 months ago | Listing updated with changes from the MLS® |
Based on information submitted to the MLS GRID as of 2026-02-06 07:59 PM EST. All data is obtained from various sources and may not have been verified by broker or MLS GRID. Supplied Open House Information is subject to change without notice. All information should be independently reviewed and verified for accuracy. Properties may or may not be listed by the office/agent presenting the information.

Did you know? You can invite friends and family to your search. They can join your search, rate and discuss listings with you.